არქიტექი
სარემონტო მომსახურება
მთავარი
სერვისი
სახლის რემონტი
ოფისის რემონტი
კერძო სახლის რემონტი
რემონტი ბათუმში
ინტერიერის დიზაინი
ნამუშევრები
ფასები
ჩვენ შესახებ
გუნდი
ჩვენ შესახებ
რატომ ჩვენ
კარიერა
ბლოგი
კონტაქტი
ნამუშევრები
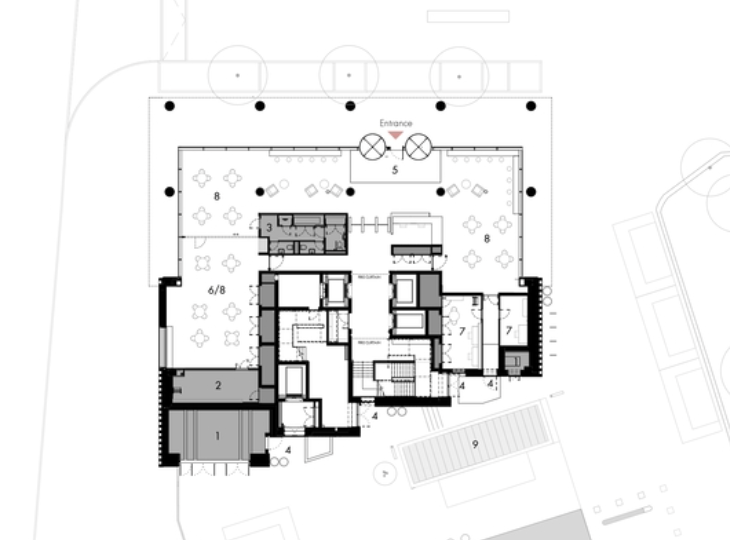
საოფისე შენობა
სამუშაოს ხანგრძლივობა
65
დღე
მოცულობა
7949 მ²
მდებარეობა
საოფისე შენობა
No items found.